居住成员:
装潢费用:-
房屋平数: - 平
设计风格:新古典
房屋类型:别墅
房屋状况:自地自建
图片提供:丰聚室内装修设计
空间格局:客厅、餐厅、厨房、主卧房、次卧室、起居室、书房、酒吧
主要建材:木皮、多种天然石材、浮雕艺术线版、进口壁布、订製家具
木皮多种天然屋主长年旅居海外,一次返国的偶然机会,在老家附近买下了这块漂亮角地,兴起了自建欧风别墅的念头,好作为将来退休后的永久居所。而主导全案空间规划的丰聚设计,从建筑起造阶段即与建筑师紧密配合,专业经验丰富的李羽芝、黄翊峯两位设计师,并根据基地既有条件和屋主对于欧式生活的偏好,定调优雅的新古典主轴,透过精緻的材质演绎与细节工艺,让空间与生活机能紧密连结,为屋主创造在家就如同出国度假般的极致享受,这座外观令人惊艳的自建别墅,还有个浪漫的名字──Lee Corner呢!优雅线条

一楼屋高超过三米二,为了展现过人的高挑比例,包括墙面造型与机能柜体,皆以精算过的古典线条为装置主题。
大器厅堂

得利于现场大量开窗引入的丰沛天光,让空间显得格外大器敞亮,设置于两窗之间的大理石电视墙,也因为窗景延伸而面宽气势倍增。
开窗引景

因为基地形状与相关建筑法规的限制,屋子里有很多开窗与斜角,李羽芝、黄翊峯两位设计师以线条框为窗户勾勒立体感,并搭配户外植栽为室内引景。
框景转换

客厅与餐厅之间的动线串接十分别緻,利用一座气势十足的黑色石材框,作为场域转换的显性象徵。
餐叙风华

静谧而温馨的餐厅气质雍容,从石材踢脚、壁板到天花板下缘的立体线条刻划,无一不是精緻细节。
摩登厨房

相较于公领域优雅华贵的新古典调性,机能完善的厨房则洋溢前卫科技感。
休闲逸界

顶楼规划一间宽敞又温馨的起居室,活泼的顶级家具摆设搭配暖色空间基底,是家人好友聚会的绝佳场地。
多元机能

起居室一角增设精緻阅读区,与梯间天井悬挂的巨形吊灯相映成趣。
迷你酒馆

屋主非常喜爱欧洲古色古香的小酒馆风情,因此丰聚设计大胆採用犹如木头因时光燻炙后的黑色系,打造附属于起居室的酒吧区。
绝美主卧

主卧室佔地宽敞,连续开窗酝酿出如同置身欧陆庄园的旖旎,并以镜面、壁板等手法适度修饰床头面的开窗。
客製精工

屋子里处处可见精工细节,像是主卧隐藏于白色拉门后方的精美衣柜,就远自艺术之都──义大利订製而来,耗时长达七个月。
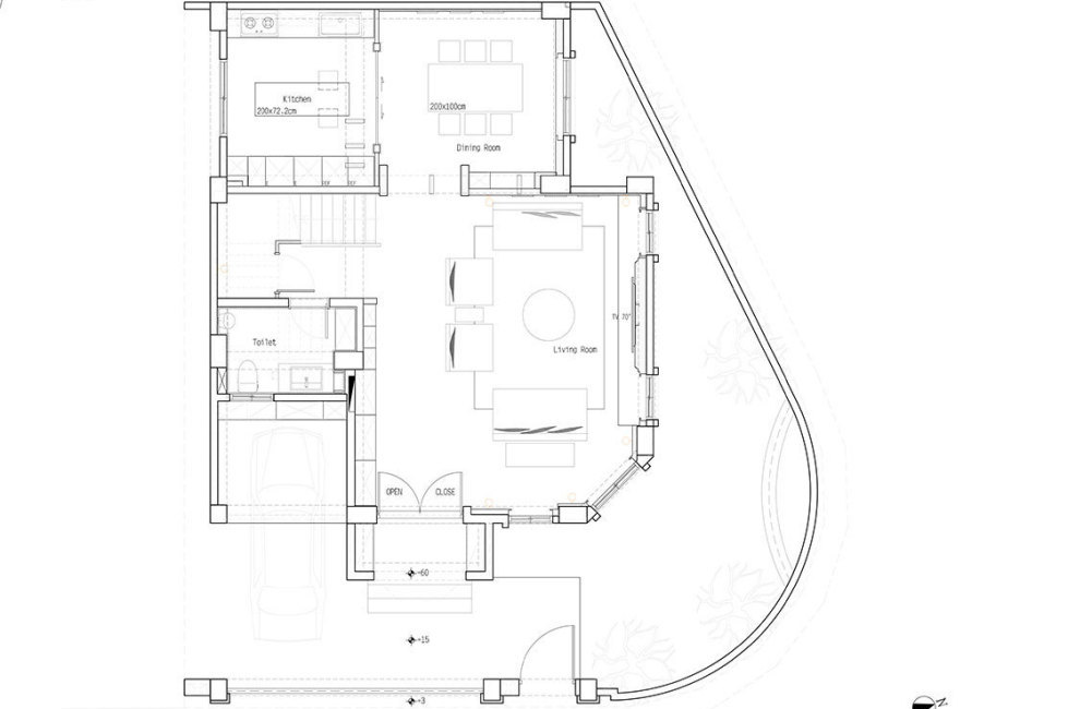
平面图

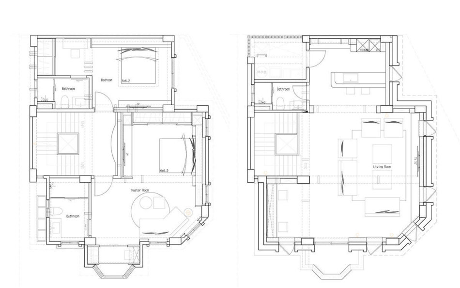
二楼与三楼平面图
