居住成员:夫妻、小孩
装潢费用:-
房屋平数:50平
设计风格:休闲多元
房屋类型:别墅
房屋状况:新成屋
图片提供:思锐设计工作室
空间格局:B1:车库、玄关。1F:客厅、餐厅、厨房。2F:主卧房。3F:琴房、游戏室。4F:和室。5F:多功能室。
主要建材:回收南方松碳化处理、人造塑胶草皮、南方松实木、OSB板、麻绳、水泥板、订製铁件轨道、清玻璃、订製不锈钢容器、喷砂实木皮、美丝板喷黑、美耐板、印度黑烧面花岗石、黑镜、斑马帘、系统柜、订製木栈板、茶镜、超耐磨地板、绷布、柔纱帘、特调色黑板漆、喷砂实木皮、绷布、地毯、拉折门、板岩步道石、白卵石、琉球式塌塌米
回收南方松碳设计师经由细腻弹奏与铺陈,在空间中谱写美丽的乐章,并将舒适与美感双双重奏,展演出如交响乐曲般的起承转合。思锐设计透过细腻的规划及思考,在屋主的预算之内,构筑了这栋拥有五层楼的童话王国,进入其中,里面装载了各式的感动,写下一页页精彩章节。沙发背墙

以山形纹路的木皮作为沙发的主墙,营造属于家的温暖;窗边卧榻的设计,则让屋主可以恣意的坐卧于此。
阁楼印象

由于1F有较高的空间,所以充分利用部分的挑高,营造斜屋顶的阁楼印象。
心灵角落

设计师在临窗的卧榻区,设计降板的鱼缸,用不锈钢容器养了几尾孔雀鱼。沙发旁的书墙,则作为与梯间的区隔,更展现文艺的人文质感。
自在呼吸

彷彿童话王国的斜屋顶设计,在充满平顶建筑的都市里,得到最大的心灵呼吸。
餐厨空间

餐桌右侧的高脚吧檯,具有配餐檯及风水的功能,可以在入门后避免开门见灶。
主卧房

主卧则选择芥末黄色,是取自女主人的姓氏;睡眠区尽量单纯化,让屋主可以在此好好的充电。
多功能需求

更衣区是女人的天下,而男主人要的是可以上网阅读的空间,所以这边一次满足双方所有的需求。
三楼空间

设计师将琴房与游戏间的实墙打掉,改成具有穿透感的玻璃折门,让空间更为宽阔。琴房设计,以琴弦森林为主题,曲线天花板是辽阔的天空;绿色的地毯则是原野上的草坪;棕色的地板则化身芬芳的泥土。
设计细节

设计师提供小朋友一处充满想像的童话天地,树状的层板展示架,扮演森林里的大树,诚品绿的黑板墙,满足了涂鸦的快乐回忆。
和室空间

男女主人可以在塌塌米上,幻想是日剧<莹之光>的生活场景,这里选用了琉球式的无边塌塌米,集视觉、嗅觉、触觉的温暖材料。阳台的天然绿地,可以满足男主人喜爱大自然的田野之乐。
沉澱的力量

彷彿小小艺廊,每一个地方都能窥见设计师的巧思,展示层板更使用男女主人的英文姓氏,作为设计的造型符码。女主人姓氏是黄,男主人姓氏是白,帮房子取了一个可爱的暱称叫做米堡(黄+白=米白色)。
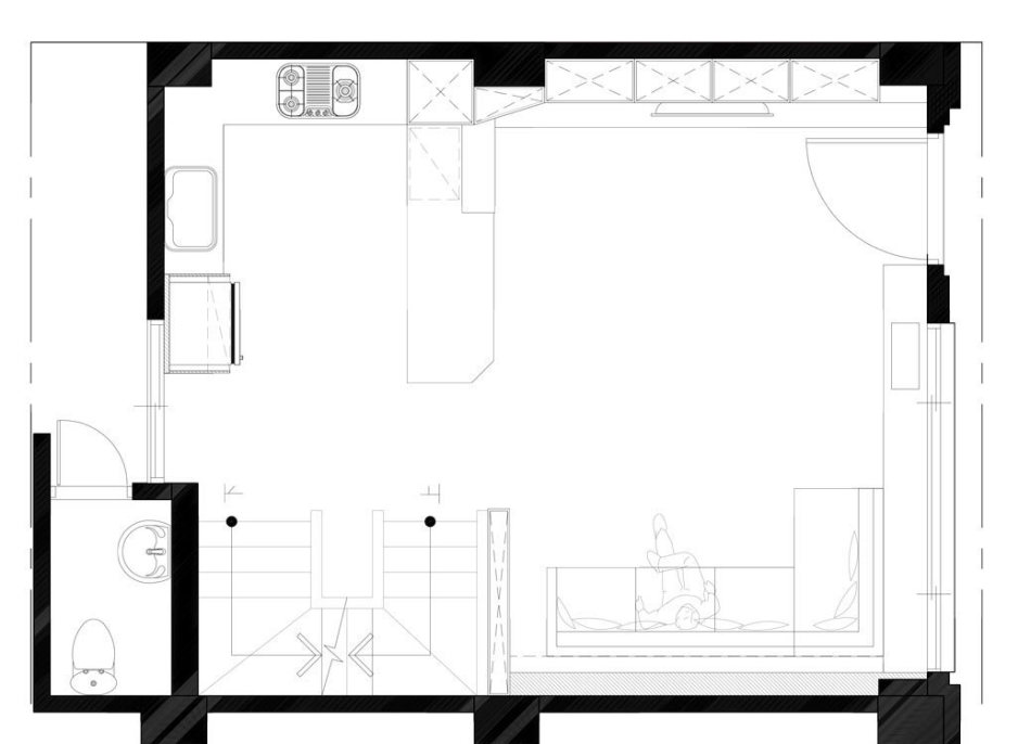
一楼客餐厅平面图
