居住成员:夫妻、小孩
装潢费用:-
房屋平数:35平
设计风格:休闲多元
房屋类型:别墅
房屋状况:旧房改造
图片提供:上堤空间设计有限公司
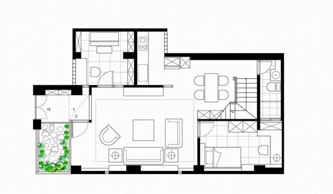
空间格局:1F-庭院、玄关、客厅、书房、餐厅、小孩房、卫浴
2F-主卧房、阅读区、卫浴
主要建材:石材、复古砖、木皮、订製家具、南方松
石材复古砖木拥有亲近湖光山色的悠闲步调,把这份轻鬆意象转化成设计语彙,设计者以经典的美式手法,演绎兼容优雅气质的休闲风格,让生活的惬意与自在无尽蔓延。家具

订製家具以米色为主,并于主人椅跳色,衬托出单椅的独特性。
餐厅

利用楼梯下扩充储藏量,不浪费任何空间。矮柜可以当成电器柜使用,让餐厅机能更为完整。
小孩房

由于小孩房的採光不足,因此维持大面积白墙,并以浅色木皮打造实用机能。
主卧房

以滚边的咖啡色石材铺陈楼梯质感,锻造元素呼应到走道开窗,顺利让主卧房的光线明亮走道。
主卧房

浅色系木纹与复古地砖,交融出温暖的寝居风情。
阅读区

房中以窗帘分隔出阅读区,让男主人可以舒适地在家办公。
窗帘

避免男女主人因不同的作息时间互相打扰,使用弹性区隔的窗帘,让两人拥有独立使用的空间。
书桌

充满古典美的家具,为空间注入柔性色彩。
卫浴

加大卫浴空间,除了规划有四件式设备,更以桧木桶搭配石材收边的浴池,满足屋主在家泡汤纾压的期待。
1F平面图

2F平面图
