
探索室内室外热带生活的房屋改造。
SAVA位于马来西亚沙巴州哥打京那巴鲁,在名为“红屋”的两层排屋改造中探索了室内和室外空间的关系。
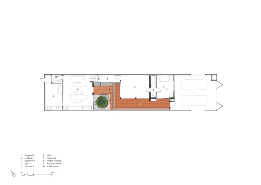
该设计位于一块狭长的场地上,面积为 6.4mx 29m,以中央庭院为特色,连接了现有的房屋结构和新的后部扩建部分。庭院是自然光、通风和视野的关键来源。它还配有一个战略性位置的天窗,以前是楼梯的位置。从餐厅升起的新楼梯可以看到庭院及其石墙,增强了上下楼梯时的日常空间体验。
房屋通过庭院和天窗最大限度地利用自然采光,使客厅、餐厅、卧室和游戏室等室内空间沐浴在充足的阳光下。房屋占地 175 平方米,以石材、木材和陶土为主要材料,与树木、阳光和微风等自然元素形成对话。
前立面采用简单的混凝土通风块布置,过滤早晨的阳光,保护卧室与主干道之间的私密性。室外赤陶走道遮阳且相互连接,无缝连接每个房间与庭院,充当从主入口到房屋中心的引导路径。抬高后部延伸部分在现有结构和新结构之间引入了分层,从而产生足够的土壤深度,让树木茁壮成长,同时在庭院中设置户外座位。

这栋房屋的布局非常规,入口位于中央庭院,而不是前面。这种布局还通过将公共游戏室和客房设在前面来满足客户每周与孩子见面的需求。它们通过庭院从入口连接到后面的私人空间。此外,走道和庭院是安全可靠的户外空间,孩子们的学习活动从游戏室延伸到室外,作为“第三位老师”为环境做出了贡献。
厨房和餐厅毗邻庭院,可享受自然微风和宁静的树景。客厅位于楼上,可享受庭院和天窗的自然采光。接下来,主卧室可通过高架遮阳赤陶走道进入。这体现了客户每次进出私人空间时与大自然亲密接触的本质。最后,阁楼可通往屋顶,屋顶配有水箱和用于热水器的太阳能电池板,未来可用作屋顶花园。
这次改建体现了空间设计、自然元素和功能的精心相互作用,探索了传统的房屋布局概念,同时促进了居住者与环境之间的和谐联系。



























项目名称:
建筑公司: 萨瓦
地点: 亚庇, 沙巴, 马来西亚
摄影: Ryan Chan、Aron Beh
首席建筑师:
设计团队: 亚伦·贝·卡瓦伊
合作者:
室内设计:
建筑面积:
场地面积: 185.6 平方米
设计年份:
竣工年份: 2024
土木工程师:
结构工程师:
环境与机电:
景观:
灯光:
监管:
可视化:
使用的工具:
建造:
材料: 混凝土、玻璃、钢材、石材
预算: 未公开
客户: 私人的
地位: 完全的
类型: 住宅 › 房屋